Családi ház

2566 Nyomtatás Ajánlás Facebook

**Eladó Családi Ház Balkányban - Kiváló Állapot, Ideális Elhelyezkedés!**

Szeretné új otthonát egy csendes, mégis központi helyen megtalálni? Ismerje meg ezt a különleges lehetőséget Balkányban!

**Ingatlan jellemzői:**
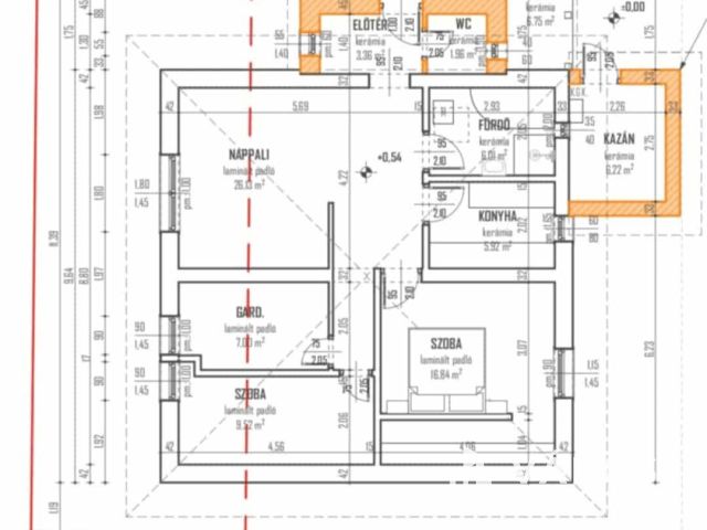
- **Lakótér**: 90 m²
- **Telekméret**: 1600 m²
- **Helyiségek**: 3 szoba, 1 nappali, 1 fürdőszoba és egy külön WC
- **Állapot**: Kiváló

**Főbb előnyök:**
- Csendes utcában található, mégis a belváros közelsége biztosítja a kiváló közlekedést.
- A ház praktikusan van kialakítva: redőnyözött ablakok, külön fürdő és WC növelik a komfortérzetet.
- Az elektromos kapunyitónak köszönhetően a gépjármű parkolása gyerekjáték, akár az udvari beállón, akár a leendő dupla garázsban.
- A kerti grillezőhely ideális családi és baráti összejövetelekhez.
- A fúrt kút és a hidrofor biztosítják a kert gazdaságos öntözését.
- Klíma gondoskodik a nyári hűsölésről.
- Háromfázisú áramellátás teszi lehetővé a nagyobb teljesítményű háztartási gépek használatát.

Ez az ingatlan tökéletes választás mindazok számára, akik nyugodt, de minden igényt kielégítő környezetben szeretnének élni.
remek lehetöség egy család számra! Ne hagyja ki ezt a remek lehetőséget!

További információkért és megtekintésért keressen minket bizalommal!


Papp Gabriella
06/30-8693969

Papp Gabriella

Papp Gabriella

Ingatlanértékesítő
Debrecen
+36 (30) 869 3969
Észrevétel a hirdetéssel kapcsolatban
Egy ingatlanos naplója