Családi ház Likócson

496 Nyomtatás Ajánlás Facebook

Eladó Családi Ház Győr-Likócs Csendes Zöldövezetében!

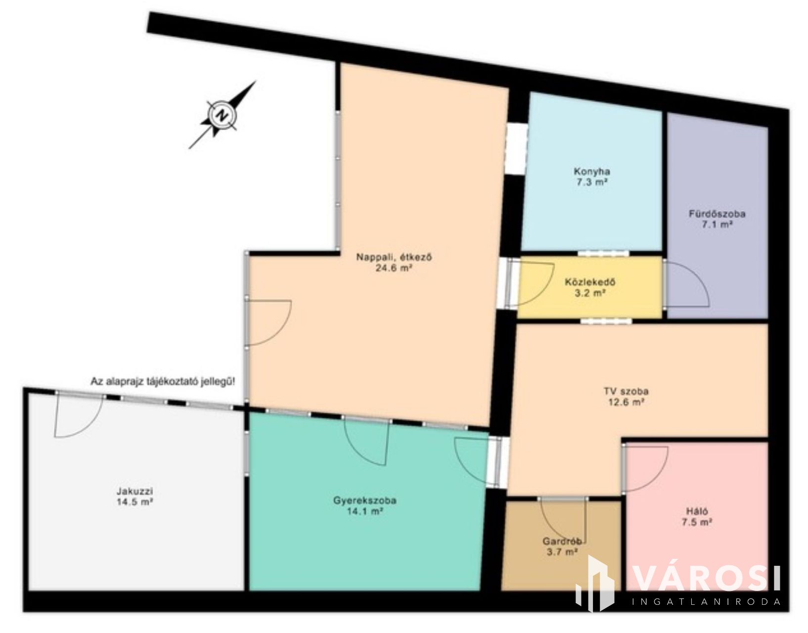
Álmodozott már egy otthonról, ahol a természet közelsége és a belváros kényelme egyszerre elérhető? Most itt az alkalom, hogy ezt valóra váltsa! Eladásra kínálunk egy kellemes, 90 m²-es családi házat Győr-Likócs városrészben, amely minden igényt kielégít.

Az ingatlan főbb jellemzői:
- Egy szintes épület átlagos állapotban
- 2 tágas szoba és 1 nappali, melyek kellemes pihenést biztosítanak
- Amerikai konyha modern kivitelben
- Padlófűtés a jó hőérzetért;
- Klímaberendezés és külső hőszigetelés a komfortos hőmérsékletért télen-nyáron
- Napkollektorral csökkentett rezsiköltségek

A házhoz tartozik egy gyönyörű, parkosított udvar, ahol automata öntözőrendszer gondoskodik a mindig zöld gyepről. A napfényes terasz ideális helyszín a reggeli kávézásokhoz vagy az esti lazításhoz. Nyári grillpartikat a kerti grillezőhely és a kemence teszik felejthetetlenné.

Az igazi különlegességek pedig csak most következnek:
- Privát medence és jakuzzi a forró nyári napokra
- Kerti tó, amely még varázslatosabbá teszi a zöldövezet hangulatát
- Melléképület és saját tároló az extra tárolási lehetőségekért
- Közvetlen vízparti fekvés, mely ritkaságszámba megy
- Csendes, parkosított udvar

Az ingatlan egy csendes utcában található, de a belváros közelsége és a jó közlekedés miatt gyorsan bárhol ott lehet. Fedezze fel Győr-Likócs nyugodt, barátságos környezetét, és tegye meg az első lépést álmai otthona felé!

Ne hagyja ki ezt a páratlan lehetőséget! További információért és megtekintésért keressen bizalommal!

Bognár Gergő

Bognár Gergő

Ingatlanértékesítő
Győr
+36 (30) 367 3357
Észrevétel a hirdetéssel kapcsolatban
Egy ingatlanos naplója