Debreceni 5 Szobás Jó Ház Csendes Kertvárosi Környezetben!

3779 Nyomtatás Ajánlás Facebook

Eladó Debrecen Falóger városrész csendes, zöldövezeti részén egy nagyon jó családi ház!

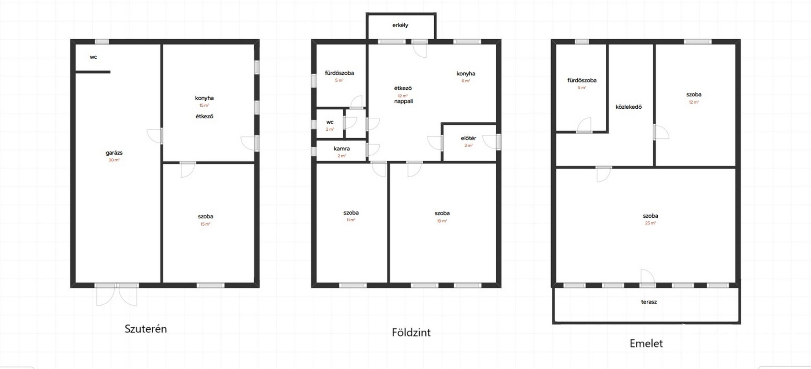
Ez a kiváló állapotú, háromszintes ingatlan tökéletes választás mindazoknak, akik a nyugalom szigetére vágynak a város forgatagában. Az épület 120 m²-es lakóteret kínál, melyben 4 tágas szoba, egy otthonos nappali, és egy amerikai konyha kapott helyet. Két modern fürdőszoba és különálló wc gondoskodik a maximális kényelmetekről. A ház alatt egy 60 nm-es nagyon hangulatos szuterén is van, ahol egy nagyméretű étkező-konyha, egy nagy szoba, wc mosdó, és egy dupla garázs található!

A ház fenntartása rendkívül alacsony a napelem rendszernek köszönhetően. A hideg téli estéken gázkazán radiátorokkal, és egy hangulatos kandalló biztosítja a meghitt meleget, míg nyáron a parkosított udvar árnyas részei és a hűvös szuterén nyújtanak felfrissülést.

A 320 m²-es telek számos extrával rendelkezik: kerti grillezőhely várja a családi és baráti összejöveteleket, a fúrt kút pedig biztosítja a kert gondozásához szükséges vizet. A szuterén és a melléképületek ideális tárolási lehetőséget nyújtanak az egész család holmijának.

A dupla garázs és az udvari gépjárműbeálló lehetőség megoldják a parkolási igényeket, míg az erkélyről csodálatos kilátás nyílik a környező természetre. A háromfázisú áram és a hidrofor rendszer tovább növelik az ingatlan értékét. Mindezt szúnyoghálós ablakokkal felszerelve, hogy a nyári időszakban is zavartalanul élvezhessük a ház nyújtotta előnyöket.

Ne hagyja ki ezt a remek lehetőséget! Érdeklődjön még ma, és találjon otthonra Debrecen egyik legkeresettebb városrészében!

További információkért és megtekintésért keressen bizalommal!
TRIPSÓ TIBOR
+36 30 942 5373
Prémium ingatlanértékesítő
Városi Ingatlaniroda
Debrecen

Tripsó Tibor
PRÉMIUM

Tripsó Tibor

10 éve a Városi Ingatlaniroda tagja
Ingatlanértékesítő, Karrierigazgató
Debrecen
+36 (30) 942 5373
Észrevétel a hirdetéssel kapcsolatban
Egy ingatlanos naplója