Derék utcán eladó egy felújított, panorámás lakás

614 Nyomtatás Ajánlás Facebook

Eladó felújított panel lakás Debrecenben a Tócóskert városrészben!
Debrecen -Tócóskert egyik legkedveltebb részén, a Derék utcán eladó egy felújított lakás , ahol városi élet és a természet közelsége találkozik.
Most itt a lehetőség!
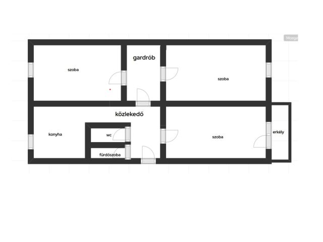
Az eladásra kínált ingatlan egy 67 m²-es, felújított panel lakás egy 8 szintes épületben. Az ingatlan ideális választás mindazok számára, akik fontosnak tartják a minőséget és a praktikumot.
A lakás jellemzői:
Tágas nappali és két kényelmes hálószoba biztosít elegendő teret a család minden tagjának.
Külön kialakításra került egy gardrob a két szoba találkozásánál, ahova mindkét szobából be lehet jutni.
Külön fürdőszoba és WC.
Az ingatlan műszaki állapota kiváló, a vízvezeték-hálózat teljes körűen felújításra és korszerűsítésre került, így hosszú távon is megbízható működést biztosít.
A lakás nyílászárói szintén teljes cserén estek át, modern, esztétikus kivitelük nemcsak a megjelenést emeli, hanem hozzájárul a jobb hő- és hangszigeteléshez is.
Az ingatlan fűtését központi távfűtés biztosítja, egyedi mérés alapján. A mért fűtés lehetővé teszi a fogyasztás pontos nyomon követését, így a rezsiköltség jól kontrollálható és a tényleges használathoz igazodik. Ez a megoldás gazdaságosabb és igazságosabb elszámolást biztosít a lakók számára.
-Az erkélyről gyönyörű kilátás nyílik a zöldövezetre, tökéletes helyszín a reggeli kávéhoz vagy esti pihenéshez.
Dekorvilágítás ad különleges hangulatot az otthonnak.
-A beépített szekrények biztosítanak elegendő tárolóhelyet.
-Szúnyogháló védi otthonát a rovaroktól anélkül, hogy akadályozná a levegő áramlását.
-Kiváló közlekedési lehetőségek , iskola, óvoda, bevásárlóközpont , buszmegálló karnyújtásnyira található. gyorsan elérheti a város bármelyik pontját tömegközlekedéssel vagy autóval.
Ez a lenyűgöző otthon most várja új tulajdonosát. Ne hagyja ki ezt a remek lehetőséget!
Ha felkeltettük érdeklődését, kérjük, vegye fel velünk a kapcsolatot további információért és időpont egyeztetésért.
Az álomotthona csak egy hívásnyira van!
Az ingatlan azonnal költözhető, itt felújítással már nem kell foglalkoznia.
Teljes körű ügyintézést vállaljuk !

Tripso ildikó
Városi Ingatlaniroda
06309055419

Tripsó Ildikó

Tripsó Ildikó

Ingatlanértékesítő
Debrecen
+36 (30) 905 5419
Észrevétel a hirdetéssel kapcsolatban
Egy ingatlanos naplója