Egy új, impozáns lakás eladó.

2757 Nyomtatás Ajánlás Facebook

Eladó egy kivételes téglaépítésű lakás, Debrecen közkedvelt helyén, közel a belvároshoz .
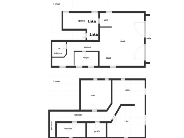
Ez a két szintes, 3 lakásos társasházban lévő , 128 m²-es lakótérrel rendelkező ingatlan ,tökéletes választás mindazok számára, akik kényelmes és modern otthont keresnek. Az ingatlanhoz tartozik egy 60 m²-es kert, amely ideális lehetőséget nyújt a kikapcsolódásra ,a saját kertrészben kerti sütögetésre .
A lakás belső szintes elrendezése, tágas teret biztosít, 3 különálló szobája és egy nappalija lehetőséget ad a család minden tagjának a privát térre. Az ingatlan kiváló állapotban van, és prémium anyagok felhasználásával készült. A padlófűtés és a külső hőszigetelés nemcsak komfortos, de alacsony fenntartási költségeket is garantál.
Az erkélyről csodás kilátás nyílik a környező zöld területekre, míg a 2 fürdőszoba és WC tovább növeli az itt élők kényelmét. A lakás elhelyezkedése kiváló közlekedési kapcsolatokat biztosít a belváros közelsége révén.
Ne hagyja ki ezt a remek lehetőséget, hogy egy prémium minőségű, ideális elrendezésű és alacsony fenntartási költségű otthon tulajdonosa legyen Debrecen egyik kedvelt városrészében! Érdeklődjön még ma!

TRIPSÓ ILDIKÓ
+36 30 9055419
Városi Ingatlaniroda
Debrecen

Tripsó Ildikó

Tripsó Ildikó

Ingatlanértékesítő
Debrecen
+36 (30) 905 5419
Észrevétel a hirdetéssel kapcsolatban
Egy ingatlanos naplója