Mammut bevásárló központra panorámás lakás a Széna téren

3691 Nyomtatás Ajánlás Facebook

Budapest egyik legforgalmasabb közlekedési csomópontjában, a Széna téren, Széll Kálmán tér, Mammut bevásárlóközpont, közvetlen szomszédságában, villamosok, autóbuszok és metróvonal, rendkívüli gyalogos és autóforgalom mellett, kínálunk megvételre, közvetlenül az említett térre való rálátással, jól reklámozható ablakfelületekkel, egy teljes körűen felújított, tégla építésű lakást.
Frissen felújított, fotózás óta a konyha is berendezésre került, ennek ára 8 millió Ft, mely külön fizetendő.

Az ingatlan, bár lakás, de üzleti funkcióra is kiváló lehet. Elhelyezkedése és adottságai miatt, akár orvosi rendelő, könyvelő iroda, ügyvédi iroda is működhet benne.

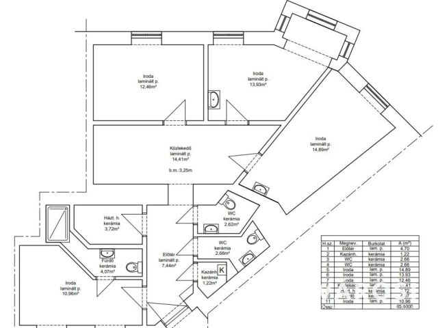
Minden helyiségben van víz, kézmosási lehetőség, klíma és redőny.
Három rétegű nyílászárók gondoskodnak a teljes csendről valamint a fürdőszobán kívül, két szeparált vendég toalett is kialakításra került.
Felújításkor minden is cserélve lett, az aljzattól a menyezetig. Vezetékek, nyílászárók, burkolatok.
A villamoshálózat úgy lett kialakítva, hogy akár nagyobb teljesítményű orvosi gépeket is ki tudjon szolgálni.
Minden szoba külön almérővel ellátott.

Az ingatlan teljes kialakítása, rendkívül frekventált környezete, jól reklámozható felületei, kíválóan alkalmassá teszik üzlei tevékenység kialakítására.
Amennyiben ilyen jellegű ingatlant keres a környéken, ne hozzon döntést, mielőtt ezt nem látta.

Ingatlanvásárláshoz hitelre van szüksége? Sajnos ezzel nincs egyedül.
Mi teljes körű, díjmentes segítséget nyújtunk a hitelügyintézésben.
Megvizsgáljuk hitelképességét, eligazítjuk a lehetőségek között, és személyre szabott ajánlatokat kérünk Önnek, olyan feltételekkel, amelyeket a bankban egyedül biztosan nem kapna meg.
Önnek mindössze annyi dolga marad, hogy a végén aláírja a szerződést.
Forduljon hozzánk bizalommal akkor is, ha nem tőlünk vásárol ingatlant – garantáltan nem fog csalódni.

Várom hívását. Ingatlannal és hitelügyekkel kapcsolatos kérdésekben bármikor, hangsúlyozom, bármikor hívhat.
De tényleg :-)

In one of Budapest’s busiest transportation hubs, at Széna Square, in the immediate vicinity of Széll Kálmán Square and the Mammut Shopping Center, with trams, buses, and metro lines nearby, and exceptionally high pedestrian and vehicle traffic, we offer for sale a fully renovated brick-built apartment with direct views of the square and highly visible, well-advertisable window surfaces.

The property has been freshly renovated; since the photos were taken, the kitchen has also been fully installed. The price of the kitchen is HUF 8 million, payable separately.

Although registered as a residential apartment, the property is also perfectly suitable for commercial use. Due to its location and features, it could function excellently as a medical practice, accounting office, or law firm.

Each room is equipped with water supply, hand-washing facilities, air conditioning, and shutters. Triple-glazed windows ensure complete quiet, and in addition to the bathroom, two separate guest toilets have been created.

During the renovation, everything was replaced from floor to ceiling, including all wiring, windows, and coverings. The electrical system was designed to support even high-performance medical equipment. Each room is fitted with its own individual sub-meter.

The overall layout of the property, its extremely prime location, and its highly visible, well-advertisable surfaces make it ideal for establishing a business activity. If you are looking for a property of this type in the area, do not make a decision before viewing this one.

Do you need a loan to purchase a property? You are certainly not alone.
We provide comprehensive, free-of-charge assistance with loan administration. We assess your creditworthiness, guide you through the available options, and request personalized offers for you—on terms you would most likely not be able to obtain on your own at a bank. Your only task is to sign the contract at the end.

Feel free to contact us even if you are not purchasing a property from us—you will not be disappointed.

I look forward to your call. For any questions regarding real estate or financing, you may call me anytime—emphasis on anytime.
Really.

Fekete Zoltán
PRÉMIUM

Fekete Zoltán

10 éve a Városi Ingatlaniroda tagja
Régióigazgató, ingatlanértékesítő
Budapest
+36 (70) 947 6547
Észrevétel a hirdetéssel kapcsolatban
Egy ingatlanos naplója